Referencias Urbanismo
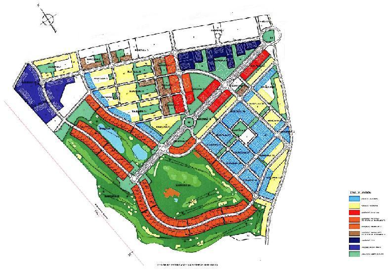
Desarrollo Amwaj Bouregreg - Fase 1

Desarrollo Amwaj Bouregreg - Fase 1
Cliente: SAMA DUBAI
Alcance: Redacción de Proyecto
Superficie: 265.500 m2
Localidad: Rabat, Marruecos
Año: 2008
Urbanización Señorio de Illescas

Urbanización Señorio de Illescas
Cliente: FADESA INMOBILIARIA, S.A.
Alcance: Proyecto y Dirección Facultativa de la Urbanización
Superficie: 1.100.000 m2
Localidad: Illescas (Toledo), España
Año: 2005
Urbanización Puente Esuri

Urbanización Puente Esuri
Cliente: FADESA INMOBILIARIA, S.A.
Alcance: Proyecto y Dirección Facultativa de la Urbanización
Superficie: 4.606.876 m2
Localidad: Ayamonte (Huelva), España
Año: 2003-2004
Termas de Santa Fe

Termas de Santa Fe
Cliente: FADESA INMOBILIARIA, S.A.
Alcance: Proyecto de Urbanización
Superficie: 1.300.000 m2
Localidad: Santa Fe (Granada), España
Año: 2004
Plan General de Ordenación Urbana

Plan General de Ordenación Urbana
Cliente: AYUNTAMIENTO DE ALMODÓVAR DEL RIO
Alcance: Redacción del Plan General de Ordenación Urbanística del Municipio de Almodóvar del Rio
Superficie: 172.530.000 m2
Localidad: Almodóvar del Río (Córdoba), España
Año: 2006-2007
Complejo sanitario en sector "Bellita"

Complejo Sanitario en Sector "Bellita"
Cliente: ACUARIO SENIOR APARMENTS, S.L.
Alcance: Redacción del Plan Parcial, Proyecto de Reparcelación y Proyecto y Dirección de las Obras de Urbanización
Superficie: 97.704 m2
Localidad: Benissa (Alicante), España
Año: 2005
Plaza "Las Torres de Madrid"

Plaza "Las Torres de Madrid"
Cliente: BROADWAY MALYAN
Alcance: Proyecto de Instalaciones
Superficie: 7.300 m2
Localidad: Madrid, España
Año: 2006-2007
Alcalá Magna
EUROPA

ALCALÁ MAGNA
Cliente: ING Real Estate
Alcance: Project & Construction Management
Superficie: 87.400 m2
Localización: Alcalá de Henares (Madrid), España
Año: 2005-2007
Gran Vía de Alicante
EUROPA

GRAN VÍA DE ALICANTE
Cliente: ING Real Estate
Alcance: Diseño, Supervisión y Dirección de obra, y Construction Management
Superficie: 101.400 m2
Localización: Alicante, España
Año: 1998-1999
Avenida M-40
EUROPA

AVENIDA M-40
Cliente: UTE Sonae - Erosmer Ibérica
Alcance: Diseño, Project & Construcción Management
Superficie: 150.200 m2
Localización: Madrid, España
Año: 2002-2004
City Gate Tripoli
REGIÓN ORIENTE MEDIO & NORTE DE ÁFRICA

CITY GATE TRIPOLI
Cliente: Bab-al Madina Development
Alcance: Diseño, Project & Construction Management
Superficie: 180.000 m2
Localización: Trípoli, Libia
Año: 2007-2008
Águilas Plaza
EUROPA

ÁGUILAS PLAZA
Cliente: Águilas Plaza
Alcance: Diseño, Dirección y supervisión de obra, y Construction Management
Superficie: 75.000 m2
Localización: Águilas (Murcia), España
Año: 2006-2008
Interikea
EUROPA

INTERIKEA
Cliente: Interikea Center España
Alcance: Diseño & Site Supervision
Superficie: 564.845 m2
Localización: Jerez (Cádiz),España
Año: 2008-2010
Plaza Imperial
EUROPA

PLAZA IMPERIAL
Cliente: Duprocom
Alcance: Dirección y supervisión de obra, Project & Construction Management
Superficie: 200.000 m2
Localización: Zaragoza, España
Año: 2007-2008
El Tormes
EUROPA

EL TORMES
Cliente: Decotosa
Alcance: Construction Management
Superficie: 60.000 m2
Localización: Salamanca, España
Año: 2000-2001
Parque Almenara
EUROPA

PARQUE ALMENARA
Cliente: Necso-Lar
Alcance: Diseño, Project & Construction Management
Superficie: 105.000 m2
Localización: Lorca (Murcia), España
Año: 2007-2008
Airon
EUROPA

AIRON
Cliente: Altarea groupe
Alcance: Project & Construction Management
Superficie: 100.000 m2
Localización: Valdemoro (Madrid), España
Año: 2009-2010
Centro Comercial Lo Barnechea
AMÉRICA

CENTRO COMERCIAL LO BARNECHEA
Cliente: D & S
Alcance: Diseño, Project & Construcción Management
Superficie: 65.000 m2
Localización: Santiago de Chile, Chile
Año: 2001
Centro Comercial San Isidro
AMÉRICA

CENTRO COMERCIAL SAN ISIDRO
Cliente: Saga Falabella
Alcance: Diseño, Dirección y supervisión de obra, y Construction Management
Superficie: 28.000 m2
Localización: Lima, Perú
Año: 1999
Parc Central
EUROPA

PARC CENTRAL
Cliente: Decotasa (ING Real Estate)
Alcance: Diseño, Dirección y supervisión de obra, y Construction Management
Superficie: 80.000 m2
Localización: Tarragonha, España
Año: 1996-997
Centro Comercial Ames
EUROPA

CENTRO COMERCIAL AMES
Cliente: Santiago Sur
Alcance: Diseño & Construction Management
Superficie: 70.000 m2
Localización: Ames, Galicia, España
Año: 2007-2008
Centro Comercial Ames
EUROPA

CENTRO COMERCIAL AMES
Cliente: Santiago Sur
Alcance: Diseño & Construction Management
Superficie: 70.000 m2
Localización: Ames, Galicia, España
Año: 2007-2008
Centro Comercial Ames
EUROPA

CENTRO COMERCIAL AMES
Cliente: Santiago Sur
Alcance: Diseño & Construction Management
Superficie: 70.000 m2
Localización: Ames, Galicia, España
Año: 2007-2008
Centro Comercial Ames
EUROPA

CENTRO COMERCIAL AMES
Cliente: Santiago Sur
Alcance: Diseño & Construction Management
Superficie: 70.000 m2
Localización: Ames, Galicia, España
Año: 2007-2008
Centro Comercial Ames
EUROPA

CENTRO COMERCIAL AMES
Cliente: Santiago Sur
Alcance: Diseño & Construction Management
Superficie: 70.000 m2
Localización: Ames, Galicia, España
Año: 2007-2008
Centro Comercial Ames
EUROPA

CENTRO COMERCIAL AMES
Cliente: Santiago Sur
Alcance: Diseño & Construction Management
Superficie: 70.000 m2
Localización: Ames, Galicia, España
Año: 2007-2008
Centro Comercial Ames
EUROPA

CENTRO COMERCIAL AMES
Cliente: Santiago Sur
Alcance: Diseño & Construction Management
Superficie: 70.000 m2
Localización: Ames, Galicia, España
Año: 2007-2008
Centro Comercial Ames
EUROPA

CENTRO COMERCIAL AMES
Cliente: Santiago Sur
Alcance: Diseño & Construction Management
Superficie: 70.000 m2
Localización: Ames, Galicia, España
Año: 2007-2008
Centro Comercial Ames
EUROPA

CENTRO COMERCIAL AMES
Cliente: Santiago Sur
Alcance: Diseño & Construction Management
Superficie: 70.000 m2
Localización: Ames, Galicia, España
Año: 2007-2008
Construction World Forum
REGIÓN ORIENTE MEDIO & NORTE DE ÁFRICA

CONSTRUCTION WORLD FORUM
Cliente: Emaar
Alcance: Diseño & Construction Management
Superficie: 43.700 m2
Localización: Yarfour, Damasco, Siria
Año: 2006
Centro Comercial Bena Properties
REGIÓN ORIENTE MEDIO & NORTE DE ÁFRICA

CENTRO COMERCIAL BENA PROPERTIES
Cliente: Bena
Alcance: Diseño
Superficie: 123.500 m2
Localización: Aleppo, Siria
Año: 2006
Centro Comercial Bena Properties
REGIÓN ORIENTE MEDIO & NORTE DE ÁFRICA

CENTRO COMERCIAL BENA PROPERTIES
Cliente: Bena
Alcance: Diseño
Superficie: 123.500 m2
Localización: Aleppo, Siria
Año: 2006
Centro Comercial Bena Properties
REGIÓN ORIENTE MEDIO & NORTE DE ÁFRICA

CENTRO COMERCIAL BENA PROPERTIES
Cliente: Bena
Alcance: Diseño
Superficie: 123.500 m2
Localización: Aleppo, Siria
Año: 2006
Centro Comercial Bena Properties
REGIÓN ORIENTE MEDIO & NORTE DE ÁFRICA

CENTRO COMERCIAL BENA PROPERTIES
Cliente: Bena
Alcance: Diseño
Superficie: 123.500 m2
Localización: Aleppo, Siria
Año: 2006
Centro Comercial Ames
EUROPA

CENTRO COMERCIAL AMES
Cliente: Santiago Sur
Alcance: Diseño & Construction Management
Superficie: 70.000 m2
Localización: Ames, Galicia, España
Año: 2007-2008
Centro Comercial Ames
EUROPA

CENTRO COMERCIAL AMES
Cliente: Santiago Sur
Alcance: Diseño & Construction Management
Superficie: 70.000 m2
Localización: Ames, Galicia, España
Año: 2007-2008
Centro Comercial Ames
EUROPA

CENTRO COMERCIAL AMES
Cliente: Santiago Sur
Alcance: Diseño & Construction Management
Superficie: 70.000 m2
Localización: Ames, Galicia, España
Año: 2007-2008
Centro Comercial Ames
EUROPA

CENTRO COMERCIAL AMES
Cliente: Santiago Sur
Alcance: Diseño & Construction Management
Superficie: 70.000 m2
Localización: Ames, Galicia, España
Año: 2007-2008
Centro Comercial Ames
EUROPA

CENTRO COMERCIAL AMES
Cliente: Santiago Sur
Alcance: Diseño & Construction Management
Superficie: 70.000 m2
Localización: Ames, Galicia, España
Año: 2007-2008
Centro Comercial Ames
EUROPA

CENTRO COMERCIAL AMES
Cliente: Santiago Sur
Alcance: Diseño & Construction Management
Superficie: 70.000 m2
Localización: Ames, Galicia, España
Año: 2007-2008
Centro Comercial Ames
EUROPA

CENTRO COMERCIAL AMES
Cliente: Santiago Sur
Alcance: Diseño & Construction Management
Superficie: 70.000 m2
Localización: Ames, Galicia, España
Año: 2007-2008
Centro Comercial Ames
EUROPA

CENTRO COMERCIAL AMES
Cliente: Santiago Sur
Alcance: Diseño & Construction Management
Superficie: 70.000 m2
Localización: Ames, Galicia, España
Año: 2007-2008
Centro Comercial Ames
EUROPA

CENTRO COMERCIAL AMES
Cliente: Santiago Sur
Alcance: Diseño & Construction Management
Superficie: 70.000 m2
Localización: Ames, Galicia, España
Año: 2007-2008
Centro Comercial Ames
EUROPA

CENTRO COMERCIAL AMES
Cliente: Santiago Sur
Alcance: Diseño & Construction Management
Superficie: 70.000 m2
Localización: Ames, Galicia, España
Año: 2007-2008
Centro Comercial Ames
EUROPA

CENTRO COMERCIAL AMES
Cliente: Santiago Sur
Alcance: Diseño & Construction Management
Superficie: 70.000 m2
Localización: Ames, Galicia, España
Año: 2007-2008
Centro Comercial Ames
EUROPA

CENTRO COMERCIAL AMES
Cliente: Santiago Sur
Alcance: Diseño & Construction Management
Superficie: 70.000 m2
Localización: Ames, Galicia, España
Año: 2007-2008
Centro Comercial Ames
EUROPA

CENTRO COMERCIAL AMES
Cliente: Santiago Sur
Alcance: Diseño & Construction Management
Superficie: 70.000 m2
Localización: Ames, Galicia, España
Año: 2007-2008
Centro Comercial Ames
EUROPA

CENTRO COMERCIAL AMES
Cliente: Santiago Sur
Alcance: Diseño & Construction Management
Superficie: 70.000 m2
Localización: Ames, Galicia, España
Año: 2007-2008
Centro Comercial Ames
EUROPA

CENTRO COMERCIAL AMES
Cliente: Santiago Sur
Alcance: Diseño & Construction Management
Superficie: 70.000 m2
Localización: Ames, Galicia, España
Año: 2007-2008
Centro Comercial Ames
EUROPA

CENTRO COMERCIAL AMES
Cliente: Santiago Sur
Alcance: Diseño & Construction Management
Superficie: 70.000 m2
Localización: Ames, Galicia, España
Año: 2007-2008
Centro Comercial Ames
EUROPA

CENTRO COMERCIAL AMES
Cliente: Santiago Sur
Alcance: Diseño & Construction Management
Superficie: 70.000 m2
Localización: Ames, Galicia, España
Año: 2007-2008
Centro Comercial Ames
EUROPA

CENTRO COMERCIAL AMES
Cliente: Santiago Sur
Alcance: Diseño & Construction Management
Superficie: 70.000 m2
Localización: Ames, Galicia, España
Año: 2007-2008
Centro Comercial Ames
EUROPA

CENTRO COMERCIAL AMES
Cliente: Santiago Sur
Alcance: Diseño & Construction Management
Superficie: 70.000 m2
Localización: Ames, Galicia, España
Año: 2007-2008
Centro Comercial Ames
EUROPA

CENTRO COMERCIAL AMES
Cliente: Santiago Sur
Alcance: Diseño & Construction Management
Superficie: 70.000 m2
Localización: Ames, Galicia, España
Año: 2007-2008
Centro Comercial Ames
EUROPA

CENTRO COMERCIAL AMES
Cliente: Santiago Sur
Alcance: Diseño & Construction Management
Superficie: 70.000 m2
Localización: Ames, Galicia, España
Año: 2007-2008
Centro Comercial Ames
EUROPA

CENTRO COMERCIAL AMES
Cliente: Santiago Sur
Alcance: Diseño & Construction Management
Superficie: 70.000 m2
Localización: Ames, Galicia, España
Año: 2007-2008
Centro Comercial Ames
EUROPA

CENTRO COMERCIAL AMES
Cliente: Santiago Sur
Alcance: Diseño & Construction Management
Superficie: 70.000 m2
Localización: Ames, Galicia, España
Año: 2007-2008
Centro Comercial Ames
EUROPA

CENTRO COMERCIAL AMES
Cliente: Santiago Sur
Alcance: Diseño & Construction Management
Superficie: 70.000 m2
Localización: Ames, Galicia, España
Año: 2007-2008
Centro Comercial Ames
EUROPA

CENTRO COMERCIAL AMES
Cliente: Santiago Sur
Alcance: Diseño & Construction Management
Superficie: 70.000 m2
Localización: Ames, Galicia, España
Año: 2007-2008
Para tener éxito, su contenido debe ser útil para sus lectores.
Comience con el cliente – descubra lo que quiere y déselo.